Campus Buffon : rénover pour mieux chercher
À Paris, l’agence Lemoal Architectes réhabilite l’Orangerie du Muséum national d’Histoire naturelle, retrouvant la cohérence d’une œuvre d’Emmanuel Pontremoli, réalisée par les frères Perret, pour en faire un nouveau lieu de vie scientifique. Un projet qui ouvre la voie à une nouvelle génération de bâtiments publics, où l’architecte est à la fois maître d’œuvre et AMO.
Clémentine Roland

À l’écart du flux touristique du Jardin des Plantes, derrière de hauts murs de briques, le campus Buffon se déploie comme une ville secrète. Laboratoires, serres, ateliers, logements et entrepôts y dessinent un territoire dense, hérité de plus d’un siècle d’activités scientifiques. C’est là, dans cet îlot discret du 5ᵉ arrondissement, que siège une sphère essentielle du Muséum national d’Histoire naturelle : celle du travail quotidien, de la recherche, de l’entretien des collections et des savoir-faire techniques.
L’histoire du site reflète les transformations successives du quartier, autrefois traversé par la Bièvre, rivière industrieuse et malodorante autour de laquelle prospéraient tanneries et ateliers. À la fin du XVIIIᵉ siècle, Buffon, éminent naturaliste et intendant du Jardin des Plantes – alors nommé « Jardin du Roi » –, acquiert le clos Patouillet, situé entre le Jardin et la rue Poliveau. La chute du Second Empire et la proclamation de la IIIe République occasionneront la restitution de ces terrains au Muséum, ouvrant une nouvelle période de développement du site scientifique, dont la structuration se stabilisera au début du XXe siècle, au cours duquel recherche et enseignement connaissent un essor considérable. Plusieurs bâtiments scientifiques (orangerie, graineterie, ateliers) seront alors construits sur l’ancien clos Patouillet ; mais les années passant, ils seront pourtant rapidement dénaturés par une série d’interventions et d’extensions peu harmonieuses, à l’instar d’une cantine installée dans l’orangerie, fonctionnelle jusqu’en 2022, venant avec son lot de poses techniques (ventilation, désenfumage, réseaux divers) transparaissant jusque sur la façade.
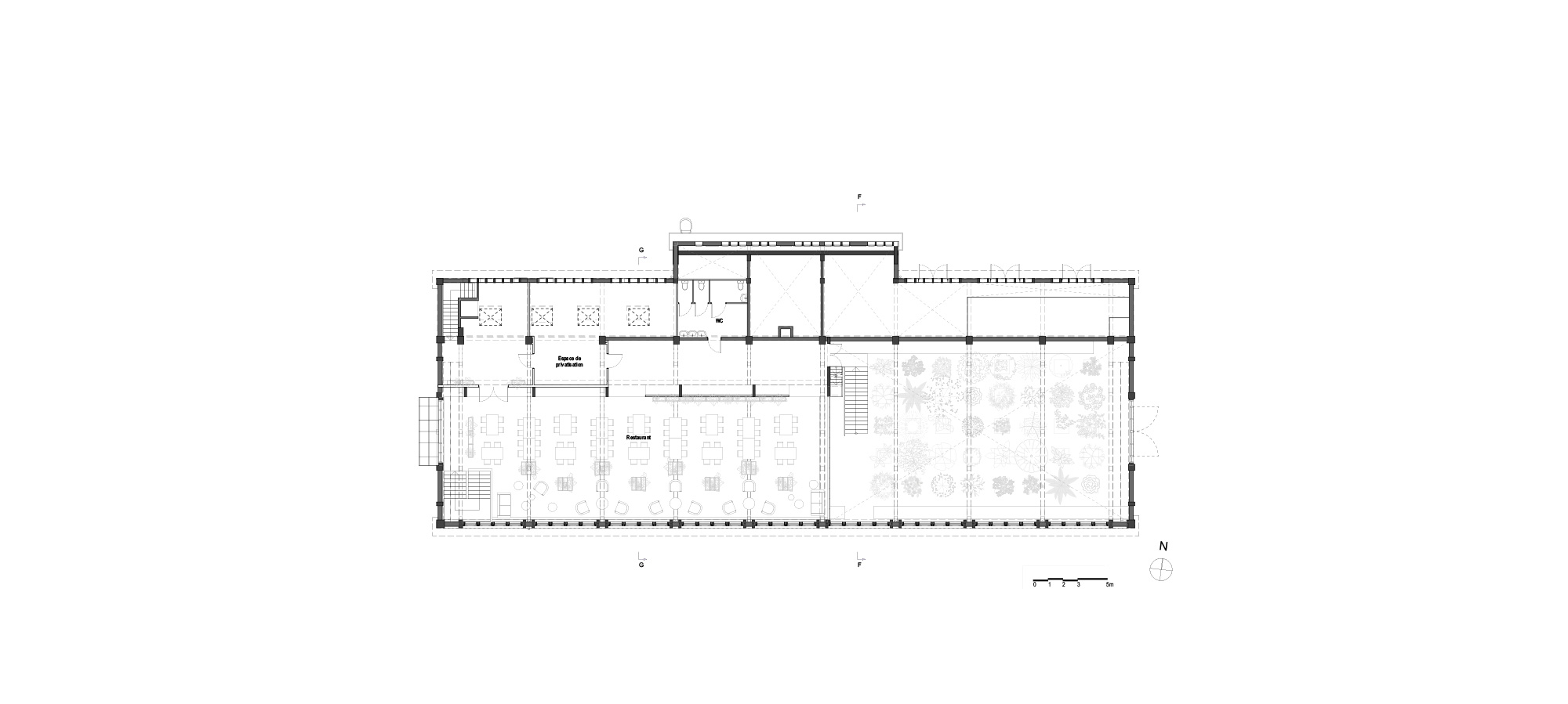
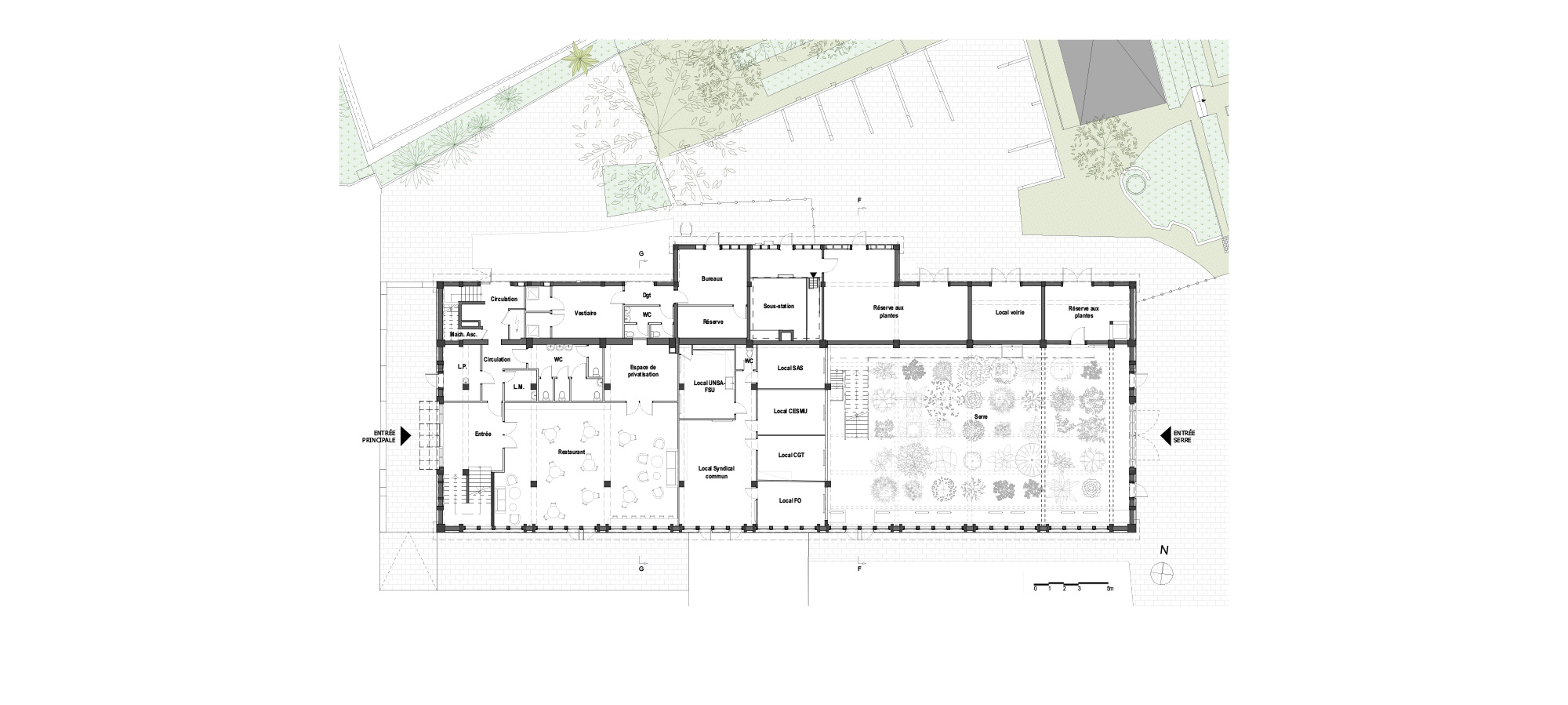
Fort heureusement, en cette même année 2022, la direction du patrimoine immobilier du Muséum entreprend une véritable réinvention du lieu, promettant le réaménagement, dans l’orangerie, d’un espace de restauration et de convivialité à l’attention des membres d’une communauté scientifique dispersée sur plus de cinquante bâtiments, tout en redorant le blason patrimonial de l’édifice. L’agence Lemoal Architectes remporte l’appel d’offres. Le projet, d’un montant de 2,5 M€ HT pour 1 600 m², est conduit en mission complète, avec la maîtrise d’œuvre et l’OPC assurés par l’agence.

Revisiter Pontremoli et Perret
En abordant le site, les architectes découvrent un bâtiment singulier : une orangerie en béton armé préfabriqué, conçue dans les années 1930 sous la direction d’Emmanuel Pontremoli, architecte en chef du Muséum, avec la collaboration des frères Perret. L’ensemble, complexifié par différents usages (stockage, serre et cantine), repose sur une structure poteaux-poutres apparente et une charpente préfabriquée en béton – chevrons et chéneaux compris – d’une finesse remarquable. Ce chef-d’œuvre discret du rationalisme français avait pourtant souffert. Les ajouts successifs avaient brouillé sa clarté spatiale, les bétons s’étaient érodés, les menuiseries s’étaient déformées ; surtout, la verrière en simple vitrage qui recouvrait la serre avait perdu de son efficacité thermique.
Pour Lemoal Architectes, la régénération devait passer par un travail chirurgical sur la structure, afin de restaurer le dessin d’origine tout en répondant aux exigences énergétiques et d’usage d’un bâtiment contemporain. L’ajout d’un double vitrage sur la verrière aurait alourdi l’ensemble au-delà de ce que pouvaient supporter la charpente et la structure en béton, tandis qu’un renforcement aurait nécessité une reprise en sous-œuvre, inenvisageable dans le budget et les délais impartis. La solution adoptée par les architectes est alors de déposer entièrement la verrière et les chevrons en béton, pour les remplacer par une structure légère en aluminium, qui intégre un double vitrage performant sans altérer la silhouette du bâtiment.
Le chantier, mené neuf mois durant en site occupé, exige une organisation millimétrée. Impossible de monter un échafaudage intérieur : avec une précision et une métrique dignes d’un grand ballet, la verrière est donc déposée et reconstruite par l’extérieur, à l’aide de grues et de nacelles, tout en respectant les périodes d’hivernage des collections botaniques hébergées dans la serre. Cette contrainte saisonnière dictera le phasage du chantier, entre opérations de gros œuvre, restauration des bétons et remplacement des menuiseries – du bois aux châssis aluminium. Les bétons, nettoyés et consolidés par imprégnation, sont laissés apparents, de même que les stigmates qu’a imprimés le temps (reprises, variations de teintes). Les chéneaux en béton, typiques des Perret, sont restaurés et réétanchéifiés au moyen d’une résine, et la toiture rénovée pour intégrer la centrale de traitement d’air et les dispositifs de désenfumage, désormais dissimulés dans un local technique discret sur la façade nord.
À l’intérieur, la transformation se traduit par un jeu d’ouvertures et de continuités pour que la nef retrouve de son ampleur passée. Au premier étage, le vaste espace du restaurant (200 places) s’ouvre en belvédère sur la serre grâce à de grandes baies vitrées. En contrebas, les espaces de réunion et de coworking prolongent cette fluidité, offrant des ambiances variées entre travail et convivialité. La façade ouest, autrefois porte monumentale, porte désormais une majestueuse façade rideau ponctuée d’un oculus central orné du logo du Muséum. À ses pieds, un nouveau parvis accueille désormais les repas extérieurs, sécurise les circulations et crée un seuil entre la rigueur scientifique du campus et la vie quotidienne de ceux qui l’habitent. Lemoal Architectes parle ici d’une « régénération » plutôt que d’une restauration. L’intervention assume la continuité du temps, tout en réinventant l’usage d’un lieu replacé au cœur du campus Buffon.

Vertus du dialogue
Le projet a aussi été une expérience de dialogue. Pour le Muséum, il ne s’agissait pas seulement de rénover un bâtiment remarquable, mais d’accompagner l’évolution des usages, en passant d’une cantine à une restauration en libre-service avec frigos connectés, intégrée dans un lieu ouvert et partagé. La maîtrise d’ouvrage a mené un important travail de concertation interne, appuyée par la maîtrise d’œuvre, notamment pour gérer les contraintes du chantier en site occupé et préserver les activités scientifiques du site. Sous l’œil de l’architecte des Bâtiments de France Clarisse Brodbeck, le projet a trouvé un équilibre entre exigence patrimoniale et adaptation contemporaine. Le résultat, sobre et lumineux, restitue la cohérence constructive de Pontremoli et Perret sans chercher à la reconstituer à l’identique.
Au-delà du bâti, la rénovation de l’orangerie illustre une dynamique plus large au sein de laquelle Lemoal aura occupé une position particulière : à la fois architecte et conseil, l’agence accompagne depuis plusieurs années la puissance publique dans l’analyse et la transformation de ses biens. Lauréate d’un accord-cadre pour la réhabilitation du patrimoine immobilier public, l’agence fait partie du cercle restreint d’équipes mandatées par la Direction de l’Immobilier de l’État (DIE) et l’Agence de gestion de l’immobilier de l’État (AGILE) pour repenser la gestion, la rénovation et la valorisation du parc immobilier public. Cet accord-cadre, issu de la volonté de créer une véritable foncière d’État, vise à rationaliser et densifier le patrimoine public, tout en en révélant la valeur architecturale.
Lemoal Architectes, désormais interlocuteur privilégié de la DIE, accompagne les services publics dans l’évaluation, la reconversion et la transformation de leurs bâtiments, souvent non classés mais porteurs d’une histoire. Au sein de l’agence, une cellule de recherche élabore d’ailleurs depuis plusieurs mois un référentiel méthodologique pour aider l’État à arbitrer entre rénovation, reconversion ou cession. L’idée : dépasser la logique du coût pour raisonner en valeur d’usage et de transmission culturelle. Dans le projet du campus Buffon, cette approche trouve une incarnation concrète : celle d’un patrimoine scientifique du XXᵉ siècle, ni monumental ni anecdotique, retrouvé et révélé par la justesse de sa transformation.

Campus Buffon, Paris 5e arrondissement, 2025
Programme : Régénération de l’Orangerie du Muséum national d’Histoire naturelle (MNHN)
Maîtrise d’ouvrage : Muséum national d’Histoire naturelle (MNHN) – Direction du Patrimoine Immobilier / Établissement public à caractère scientifique, culturel et professionnel (EPSCP)
Architectes : Lemoal Architectes (Accord cadre – Lauréat, mission complète + OPC – Loi MOP)
Équipe de maîtrise d’oeuvre : LBE Ingénierie (BET TCE), Lamalle Ingénierie (structure)
Entreprises : OZ Construction (gros œuvre, façades, VRD), Roussière (couverture, étanchéité), SMA (menuiseries extérieures, serrurerie), BSMG-LTDF (plomberie, CVC), BTB GES (électricité)
Photographies : Javier Callejas
Surface : 1 600 m2 SDP
Coût : 2,5 millions d’euros HT
Livraison : juin 2025

